WAYNE COUNTY 4/2/2026 2:22:14 AM
PITTMAN DAVID WILLARD   Return/Appeal Notes:   Parcel: 2674865954
571 PINKNEY RD PLAT: / UNIQ ID 102074 SPLIT FROM ID 39991
737446      
COUNTYWIDE ADVALOREM TAX (100), FIRE - NAHUNTA (100), SW FFEEFEE (1)        CARD NO. 1 of 1  
Reval Year: 2025 Tax Year: 2026 PINKNEY RD 9.7700 AC   SRC=  
Appraised by on 09902 GREATSWAMP WEST SIDE TW-09 CI-00 FR-09 EX- AT- LAST ACTION 20241126
CONSTRUCTION DETAIL MARKET VALUE   DEPRECIATION CORRELATION OF VALUE
Foundation - 3
Continuous Footing 5.00
Sub Floor System - 4
PLYWOOD 6.00
Exterior Walls - 21
Face Brick 34.00
Roofing Structure - 03
Gable 4.00
Roofing Cover - 03
Asphalt or Comp Shingle 4.00
Interior Wall Construction - 5
Drywall/Sheetrock 27.00
Interior Floor Cover - 12
Hardwood 10.00
Interior Floor Cover - 08
Sheet Vinyl 0.00
Heating Fuel - 04
Electric 1.00
Heating Type - 10
Heat Pump 4.00
Air Conditioning Type - 03
Central 4.00
Bedrooms/Bathrooms/Half-Bathrooms
2/2/0 8.000
Bedrooms
BAS - 2 FUS - 0 LL - 0 _
Bathrooms
BAS - 2 FUS - 0 LL - 0 _
Half-Bathrooms
BAS - 0 FUS - 0 LL - 0 _
Office
BAS - 0 FUS - 0 LL - 0 0
TOTAL POINT VALUE 107.000
BUILDING ADJUSTMENTS
Quality 5 Average 1.0000
Shape/Design 1 Market Adjustment 1.0000
Size Size Size 1.0000
TOTAL ADJUSTMENT FACTOR 1.000
TOTAL QUALITY INDEX 107
USE MOD Eff. Area QUAL BASE RATE RCN EYB AYB
   Standard  0.35000
CREDENCE TO MARKET
50 01 1,506 107 133.75 202628 1990 1900 % GOOD 65.0
DEPR. BUILDING VALUE - CARD 131,710
TYPE: RURAL SINGLE FAMILY RESIDENTIAL Single Family Residential
STYLE: 1 - 1.0 Story
 

Click on image to enlarge
DEPR. OB/XF VALUE - CARD 2,080
MARKET LAND VALUE - CARD 108,000
TOTAL MARKET VALUE - CARD 241,790
TOTAL APPRAISED VALUE - CARD 241,790
TOTAL APPRAISED VALUE - PARCEL 241,790
TOTAL PRESENT USE VALUE - PARCEL 169,740
TOTAL VALUE DEFERRED - PARCEL 72,050
TOTAL TAXABLE VALUE - PARCEL $ 169,740
PRIOR
BUILDING VALUE 92,380
OBXF VALUE 1,460
LAND VALUE 79,330
PRESENT USE VALUE 25,930
DEFERRED VALUE 53,400
TOTAL VALUE 173,170
PERMIT
CODE DATE NOTE NUMBER AMOUNT
ROUT: WTRSHD:
SALES DATA
OFF. RECORD DATE DEED TYPE Q/U V/I INDICATE SALES PRICE
BOOK PAGE MO YR
03066 0280 12 2013 WD C I 0
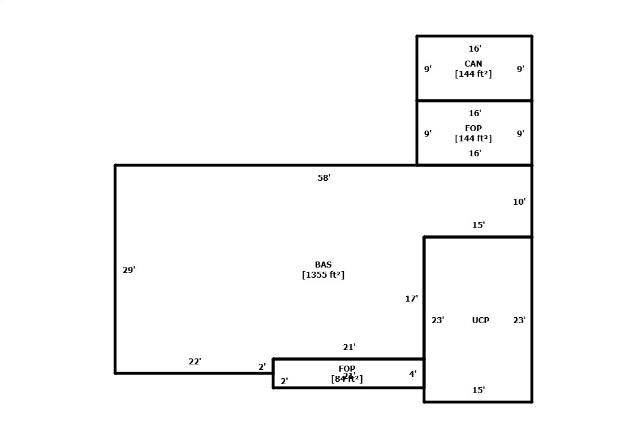
HEATED AREA 1,355
NOTES
FR 2674962029/ .22 TO 2674875226
SUBAREA
TYPE GS AREA % RPL CS
BAS 1,355 100 181231
CAN 144 010 1873
FOP 228 030 9095
UCP 345 020 9229
FIREPLACE 2 - Pre-Fab 1,200
SUBAREA TOTALS 2,072   202,628
CODE QUALITY DESCRIPTION COUNT LTH WTH UNITS UNIT PRICE ORIG % COND BLDG# AYB EYB ANN DEP RATE OVR % COND OB/XF DEPR. VALUE
01 1 STORAG BLD   46 26 1,196 10.00 100 1 1970 1970 S3   10 1196
01 1 STORAG BLD   16 12 192 10.00 100 1 1970 1970 S3   10 192
39 1 CANOPY   0 0 864 4.00 100 1 1970 1970 S3   20 691
TOTAL OB/XF VALUE 2,079
BUILDING DIMENSIONS BAS=S29E22N2E21N17E15N10W58Area:1,355.0;FOP=N2E21S4W21N2Area:84.0;FOP=W16N9E16S9Area:144.0;CAN=N9E16S9W16Area:144.0;UCP= =E15S23W15N23Area:345.0;TotalArea:2,072.0  
LAND INFORMATION
HIGHEST AND BEST USE USE CODE LOCAL ZONING FRON TAGE DEPTH DEPTH / SIZE LND MOD COND FACT OTHER ADJUSTMENTS AND NOTES
  RF   AC   LC  TO  OT
ROAD
TYPE
LAND UNIT PRICE TOTAL LAND UNITS UNT TYP TOTAL ADJST ADJUSTED UNIT PRICE LAND VALUE OVERRIDE VALUE LAND NOTES
5010 5010   0 0 1.0000 0 1.0000
  
  26,000.00 1.000 AC 1.000 26,000.00 26000 0  
5111 5111   0 0 1.3700 0 1.0000
  
  7,100.00 8.100 AC 1.370 9,727.00 78789 0  
6011 6011   0 0 1.3700 0 1.0000
  
  3,500.00 0.670 AC 1.370 4,795.00 3213 0  
TOTAL MARKET LAND DATA 9.770   108,000  
5010 5010   0 0 1.0000 5 1.0000
  
  26,000.00 1.000 AC 1.000 26,000.00 26000 0  
5110 5110   0 0 1.0000 5 1.0000
  
  1,200.00 8.100 AC 1.000 1,200.00 9720 0  
6110 6110   0 0 1.0000 5 1.0000
  
  340.00 0.670 AC 1.000 340.00 228 0  
TOTAL PRESENT USE DATA 9.770   35,950