WAYNE COUNTY 4/2/2026 2:23:23 AM
PITTMAN CHARLES A JR TRUSTEE        PITTMAN YVONNE S TRUSTEE Return/Appeal Notes:   Parcel: 3603791681
129 CROSSBOW DR PLAT: / UNIQ ID 41709
743787     ID NO: 10E03015001014
COUNTYWIDE ADVALOREM TAX (100), FIRE - PLEASANT GROVE (100), SW FFEEFEE (1)        CARD NO. 1 of 1  
Reval Year: 2025 Tax Year: 2026 LT 14 CROSSBOW 1.2100 AC   SRC=  
Appraised by 60 on 11/23/2010 10015 CROSSBOW TW-10 CI-00 FR-17 EX- AT- LAST ACTION 20240801
CONSTRUCTION DETAIL MARKET VALUE   DEPRECIATION CORRELATION OF VALUE
Foundation - 2
Piers 2.00
Sub Floor System - 4
PLYWOOD 6.00
Exterior Walls - 08
Masonite on Sheathing 30.00
Roofing Structure - 03
Gable 4.00
Roofing Cover - 03
Asphalt or Comp Shingle 4.00
Interior Wall Construction - 5
Drywall/Sheetrock 27.00
Interior Floor Cover - 08
Sheet Vinyl 9.00
Interior Floor Cover - 14
Carpet 0.00
Heating Fuel - 04
Electric 1.00
Heating Type - 04
Forced Air-Ducted 4.00
Air Conditioning Type - 03
Central 4.00
Bedrooms/Bathrooms/Half-Bathrooms
3/2/0 12.000
Bedrooms
BAS - 3 FUS - 0 LL - 0 _
Bathrooms
BAS - 2 FUS - 0 LL - 0 _
Half-Bathrooms
BAS - 0 FUS - 0 LL - 0 _
Office
BAS - 0 FUS - 0 LL - 0 0
TOTAL POINT VALUE 103.000
BUILDING ADJUSTMENTS
Quality 5 Average 1.0000
Shape/Design 6 Market Adjustment 1.1000
Size Size Size 0.9800
TOTAL ADJUSTMENT FACTOR 1.080
TOTAL QUALITY INDEX 111
USE MOD Eff. Area QUAL BASE RATE RCN EYB AYB
   Standard  0.55000
CREDENCE TO MARKET
02 01 1,768 111 94.35 168011 2000 1990 % GOOD 45.0
DEPR. BUILDING VALUE - CARD 75,610
TYPE: MOBILE HOME Single Family Residential
STYLE: 1 - 1.0 Story
 

Click on image to enlarge
DEPR. OB/XF VALUE - CARD 0
MARKET LAND VALUE - CARD 30,000
TOTAL MARKET VALUE - CARD 105,610
TOTAL APPRAISED VALUE - CARD 105,610
TOTAL APPRAISED VALUE - PARCEL 105,610
TOTAL PRESENT USE VALUE - PARCEL 0
TOTAL VALUE DEFERRED - PARCEL 0
TOTAL TAXABLE VALUE - PARCEL $ 105,610
PRIOR
BUILDING VALUE 30,670
OBXF VALUE 0
LAND VALUE 18,000
PRESENT USE VALUE 0
DEFERRED VALUE 0
TOTAL VALUE 48,670
PERMIT
CODE DATE NOTE NUMBER AMOUNT
ROUT: WTRSHD:
SALES DATA
OFF. RECORD DATE DEED TYPE Q/U V/I INDICATE SALES PRICE
BOOK PAGE MO YR
03247 0129 8 2016 WD C I 0
01792 0421 8 2000 WD U I 28000
01738 0647 9 1999 WD U I 0
01274 0068 9 1990 WD U I 10500
01222 0234 1 1989 WD U I 0
HEATED AREA 1,736
NOTES
DW MH FOR 1991-
FLD CK 1-31-92 NO ACTION
SUBAREA
TYPE GS AREA % RPL CS
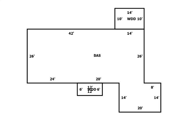
BAS 1,736 100 163792
WDD 212 015 3019
FIREPLACE 2 - Pre-Fab 1,200
SUBAREA TOTALS 1,948   168,011
CODE QUALITY DESCRIPTION COUNT LTH WTH UNITS UNIT PRICE ORIG % COND BLDG# SIZE FACT AYB EYB ANN DEP RATE OVR % COND OB/XF DEPR. VALUE
TOTAL OB/XF VALUE 0
BUILDING DIMENSIONS BAS=N26W14W42S26E24E20S14E20N14W8Area:1736;WDD=S6E12N6W12Area:72;WDD=N10W14S10E14Area:140;TotalArea:1948  
LAND INFORMATION
HIGHEST AND BEST USE USE CODE LOCAL ZONING FRON TAGE DEPTH DEPTH / SIZE LND MOD COND FACT OTHER ADJUSTMENTS AND NOTES
  RF   AC   LC  TO  OT
ROAD
TYPE
LAND UNIT PRICE TOTAL LAND UNITS UNT TYP TOTAL ADJST ADJUSTED UNIT PRICE LAND VALUE OVERRIDE VALUE LAND NOTES
0100 0100   0 0 1.0000 0 1.0000
  1.21 AC
  30,000.00 1.000 LT 1.000 30,000.00 30000 0  
TOTAL MARKET LAND DATA     30,000  
TOTAL PRESENT USE DATA