WAYNE COUNTY 4/2/2026 5:18:43 AM
BRITT CHARLES WESLEY        HERRING ANDREA SOTO Return/Appeal Notes:   Parcel: 3640712938
111 WALDEN WOODS DR PLAT: / UNIQ ID 26685
750003     ID NO: 05B07028001029
COUNTYWIDE ADVALOREM TAX (100), SW FFEEFEE (1), FIRE - NEW HOPE W (100)        CARD NO. 1 of 1  
Reval Year: 2025 Tax Year: 2026 LT 29 WALDEN WOODS 0.5500 AC   SRC=  
Appraised by 88 on 08/25/2010 05028 WALDEN WOODS TW-05 CI-00 FR-31 EX- AT- LAST ACTION 20240809
CONSTRUCTION DETAIL MARKET VALUE   DEPRECIATION CORRELATION OF VALUE
Foundation - 3
Continuous Footing 5.00
Sub Floor System - 4
PLYWOOD 6.00
Exterior Walls - 10
Aluminum/Vinyl Siding 30.00
Roofing Structure - 03
Gable 4.00
Roofing Cover - 03
Asphalt or Comp Shingle 4.00
Interior Wall Construction - 5
Drywall/Sheetrock 27.00
Interior Floor Cover - 08
Sheet Vinyl 9.00
Interior Floor Cover - 14
Carpet 0.00
Heating Fuel - 03
Gas 1.00
Heating Type - 10
Heat Pump 4.00
Air Conditioning Type - 03
Central 4.00
Bedrooms/Bathrooms/Half-Bathrooms
3/2/1 13.000
Bedrooms
BAS - 1 FUS - 2 LL - 0 _
Bathrooms
BAS - 1 FUS - 1 LL - 0 _
Half-Bathrooms
BAS - 1 FUS - 0 LL - 0 _
Office
BAS - 0 FUS - 0 LL - 0 0
TOTAL POINT VALUE 107.000
BUILDING ADJUSTMENTS
Quality 5 Average 1.0000
Shape/Design 3 Market Adjustment 1.0400
Size Size Size 0.9500
TOTAL ADJUSTMENT FACTOR 0.990
TOTAL QUALITY INDEX 106
USE MOD Eff. Area QUAL BASE RATE RCN EYB AYB
   Standard  0.18000
CREDENCE TO MARKET
50 01 2,326 106 132.50 309396 2007 1992 % GOOD 82.0
DEPR. BUILDING VALUE - CARD 253,710
TYPE: RURAL SINGLE FAMILY RESIDENTIAL Single Family Residential
STYLE: 2 - 1.5 Stories
 

Click on image to enlarge
DEPR. OB/XF VALUE - CARD 190
MARKET LAND VALUE - CARD 35,000
TOTAL MARKET VALUE - CARD 288,900
TOTAL APPRAISED VALUE - CARD 288,900
TOTAL APPRAISED VALUE - PARCEL 288,900
TOTAL PRESENT USE VALUE - PARCEL 0
TOTAL VALUE DEFERRED - PARCEL 0
TOTAL TAXABLE VALUE - PARCEL $ 288,900
PRIOR
BUILDING VALUE 157,210
OBXF VALUE 360
LAND VALUE 22,000
PRESENT USE VALUE 0
DEFERRED VALUE 0
TOTAL VALUE 179,570
PERMIT
CODE DATE NOTE NUMBER AMOUNT
ROUT: WTRSHD:
SALES DATA
OFF. RECORD DATE DEED TYPE Q/U V/I INDICATE SALES PRICE
BOOK PAGE MO YR
03401 0243 10 2018 WD A I 210000
01350 0491 10 1992 WD U I 9000
01115 0494 6 1985 WD U I 0
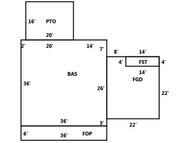
HEATED AREA 2,074
NOTES
 
SUBAREA
TYPE GS AREA % RPL CS
BAS 1,296 100 171720
FGD 572 040 30343
FOP 216 030 8613
FST 56 035 2650
FUS* 778 090 92750
PTO 320 005 2120
FIREPLACE 2 - Pre-Fab 1,200
SUBAREA TOTALS 3,238   309,396
CODE QUALITY DESCRIPTION COUNT LTH WTH UNITS UNIT PRICE ORIG % COND BLDG# AYB EYB ANN DEP RATE OVR % COND OB/XF DEPR. VALUE
01 1 STORAG BLD   12 12 144 10.00 100 1 1996 1996 S3   13 187
TOTAL OB/XF VALUE 187
BUILDING DIMENSIONS BAS=W14W20W2S36E36N3N26N7Area:1296;PTO=N16W20S16E20Area:320;FOP=S6E36N6W36Area:216;FGD=N26E8E14S4S22W22Area:572;FST=E14S S4W14N4Area:56;FUS=Area:778;TotalArea:3238  
LAND INFORMATION
HIGHEST AND BEST USE USE CODE LOCAL ZONING FRON TAGE DEPTH DEPTH / SIZE LND MOD COND FACT OTHER ADJUSTMENTS AND NOTES
  RF   AC   LC  TO  OT
ROAD
TYPE
LAND UNIT PRICE TOTAL LAND UNITS UNT TYP TOTAL ADJST ADJUSTED UNIT PRICE LAND VALUE OVERRIDE VALUE LAND NOTES
5010 5010   0 0 1.0000 0 1.0000
  
  35,000.00 1.000 LT 1.000 35,000.00 35000    
TOTAL MARKET LAND DATA     35,000  
TOTAL PRESENT USE DATA