WAYNE COUNTY 4/2/2026 2:22:04 AM
PITTMAN CHARLES A JR TRUSTEE        PITTMAN YVONNE S TRUSTEE Return/Appeal Notes:   Parcel: 2686393556
876 POLLY WATSON RD PLAT: / UNIQ ID 40472
743787      
COUNTYWIDE ADVALOREM TAX (100), FIRE - NAHUNTA (100), SW FFEEFEE (1)        CARD NO. 1 of 1  
Reval Year: 2025 Tax Year: 2026 LT 3 POLLY WATSON ACRES#2 0.7800 AC   SRC=  
Appraised by 88 on 11/17/2010 09013 POLLY WATSON ACRES #1,#2 TW-09 CI-00 FR-09 EX- AT- LAST ACTION 20250404
CONSTRUCTION DETAIL MARKET VALUE   DEPRECIATION CORRELATION OF VALUE
Foundation - 3
Continuous Footing 5.00
Sub Floor System - 4
PLYWOOD 6.00
Exterior Walls - 10
Aluminum/Vinyl Siding 30.00
Roofing Structure - 03
Gable 4.00
Roofing Cover - 03
Asphalt or Comp Shingle 4.00
Interior Wall Construction - 5
Drywall/Sheetrock 27.00
Interior Floor Cover - 08
Sheet Vinyl 9.00
Interior Floor Cover - 14
Carpet 0.00
Heating Fuel - 04
Electric 1.00
Heating Type - 04
Forced Air-Ducted 4.00
Air Conditioning Type - 03
Central 4.00
Bedrooms/Bathrooms/Half-Bathrooms
3/2/0 12.000
Bedrooms
BAS - 3 FUS - 0 LL - 0 _
Bathrooms
BAS - 2 FUS - 0 LL - 0 _
Half-Bathrooms
BAS - 0 FUS - 0 LL - 0 _
Office
BAS - 0 FUS - 0 LL - 0 0
TOTAL POINT VALUE 106.000
BUILDING ADJUSTMENTS
Quality 5 Average 1.0000
Shape/Design 6 Market Adjustment 1.1000
Size Size Size 0.9500
TOTAL ADJUSTMENT FACTOR 1.050
TOTAL QUALITY INDEX 111
USE MOD Eff. Area QUAL BASE RATE RCN EYB AYB
   Standard  0.39000
CREDENCE TO MARKET
02 01 2,110 111 94.35 200278 2005 1998 % GOOD 61.0
DEPR. BUILDING VALUE - CARD 122,170
TYPE: MOBILE HOME Single Family Residential
STYLE: 1 - 1.0 Story
 

Click on image to enlarge
DEPR. OB/XF VALUE - CARD 400
MARKET LAND VALUE - CARD 25,000
TOTAL MARKET VALUE - CARD 147,570
TOTAL APPRAISED VALUE - CARD 147,570
TOTAL APPRAISED VALUE - PARCEL 147,570
TOTAL PRESENT USE VALUE - PARCEL 0
TOTAL VALUE DEFERRED - PARCEL 0
TOTAL TAXABLE VALUE - PARCEL $ 147,570
PRIOR
BUILDING VALUE 60,470
OBXF VALUE 220
LAND VALUE 17,000
PRESENT USE VALUE 0
DEFERRED VALUE 0
TOTAL VALUE 77,690
PERMIT
CODE DATE NOTE NUMBER AMOUNT
ROUT: WTRSHD:
SALES DATA
OFF. RECORD DATE DEED TYPE Q/U V/I INDICATE SALES PRICE
BOOK PAGE MO YR
03247 0135 8 2016 WD C I 0
02311 0145 4 2005 WD U I 37500
02291 0239 2 2005 WD U I 87000
01904 0347 10 2001 WD U I 12000
00906 0307 1 1976 WD U I 0
HEATED AREA 2,052
NOTES
 
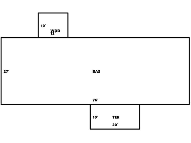
SUBAREA
TYPE GS AREA % RPL CS
BAS 2,052 100 193606
TER 200 020 3774
WDD 120 015 1698
FIREPLACE 2 - Pre-Fab 1,200
SUBAREA TOTALS 2,372   200,278
CODE QUALITY DESCRIPTION COUNT LTH WTH UNITS UNIT PRICE ORIG % COND BLDG# AYB EYB ANN DEP RATE OVR % COND OB/XF DEPR. VALUE
39 1 CANOPY   18 10 180 4.00 100 1 2010 2010 S3   55 396
TOTAL OB/XF VALUE 396
BUILDING DIMENSIONS BAS=W76S27E76N27Area:2052;WDD=N10E12S10W12Area:120;TER=W20S10E20N10Area:200;TotalArea:2372  
LAND INFORMATION
HIGHEST AND BEST USE USE CODE LOCAL ZONING FRON TAGE DEPTH DEPTH / SIZE LND MOD COND FACT OTHER ADJUSTMENTS AND NOTES
  RF   AC   LC  TO  OT
ROAD
TYPE
LAND UNIT PRICE TOTAL LAND UNITS UNT TYP TOTAL ADJST ADJUSTED UNIT PRICE LAND VALUE OVERRIDE VALUE LAND NOTES
0200 0200   0 0 1.0000 0 1.0000     25,000.00 1.000 LT 1.000 25,000.00 25000 0  
TOTAL MARKET LAND DATA     25,000  
TOTAL PRESENT USE DATA