WAYNE COUNTY 4/5/2026 2:00:20 AM
SUGGS REGINALD LEON        SUGGS HELEN MARIE ARTIS Return/Appeal Notes:   Parcel: 2599815025
222 WAYNE AVE PLAT: / UNIQ ID 47512
768953     ID NO: 12000021015002
COUNTYWIDE ADVALOREM TAX (100), CITY - GOLDSBORO (100)        CARD NO. 1 of 1  
Reval Year: 2025 Tax Year: 2026 LT 8 BLK C GOLDS HGTS 1.0000 LT   SRC=  
Appraised by 60 on 01501 DIXIE TRAIL TW-12 CI-01 FR-00 EX- AT- LAST ACTION 20250604
CONSTRUCTION DETAIL MARKET VALUE   DEPRECIATION CORRELATION OF VALUE
Foundation - 3
Continuous Footing 5.00
Sub Floor System - 5
Woo w/ Sub Floor 6.00
Exterior Walls - 21
Face Brick 34.00
Roofing Structure - 03
Gable 4.00
Roofing Cover - 03
Asphalt or Comp Shingle 4.00
Interior Wall Construction - 5
Drywall/Sheetrock 27.00
Interior Floor Cover - 09
Pine or Soft Woods 7.00
Heating Fuel - 02
Oil, Wood, or Coal 1.00
Heating Type - 04
Forced Air-Ducted 4.00
Air Conditioning Type - 01
None 0.00
Bedrooms/Bathrooms/Half-Bathrooms
3/1/1 10.000
Bedrooms
BAS - 3 FUS - 0 LL - 0 _
Bathrooms
BAS - 1 FUS - 0 LL - 0 _
Half-Bathrooms
BAS - 1 FUS - 0 LL - 0 _
Office
BAS - 0 FUS - 0 LL - 0 0
TOTAL POINT VALUE 102.000
BUILDING ADJUSTMENTS
Quality 4 Below Average + 0.9500
Shape/Design 1 Market Adjustment 1.0000
Size Size Size 1.0500
TOTAL ADJUSTMENT FACTOR 1.000
TOTAL QUALITY INDEX 102
USE MOD Eff. Area QUAL BASE RATE RCN EYB AYB
   Standard  0.60000
CREDENCE TO MARKET
01 01 1,116 102 127.50 142290 1965 1900 % GOOD 40.0
DEPR. BUILDING VALUE - CARD 56,920
TYPE: SINGLE FAMILY RESIDENTIAL Single Family Residential
STYLE: 1 - 1.0 Story
 

Click on image to enlarge
DEPR. OB/XF VALUE - CARD 0
MARKET LAND VALUE - CARD 7,330
TOTAL MARKET VALUE - CARD 64,250
TOTAL APPRAISED VALUE - CARD 64,250
TOTAL APPRAISED VALUE - PARCEL 64,250
TOTAL PRESENT USE VALUE - PARCEL 0
TOTAL VALUE DEFERRED - PARCEL 0
TOTAL TAXABLE VALUE - PARCEL $ 64,250
PRIOR
BUILDING VALUE 22,770
OBXF VALUE 0
LAND VALUE 3,180
PRESENT USE VALUE 0
DEFERRED VALUE 0
TOTAL VALUE 25,950
PERMIT
CODE DATE NOTE NUMBER AMOUNT
ROUT: WTRSHD:
SALES DATA
OFF. RECORD DATE DEED TYPE Q/U V/I INDICATE SALES PRICE
BOOK PAGE MO YR
03952 0193 12 2024 WD C I 0
01322 0268 2 1992 WD U I 0
00881 0010 1 1975 WD U I 0
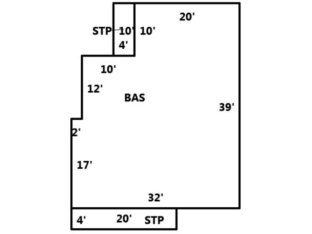
HEATED AREA 1,104
NOTES
REMODELED 1970
SUBAREA
TYPE GS AREA % RPL CS
BAS 1,104 100 140760
STP 120 010 1530
FIREPLACE 1 - None 0
SUBAREA TOTALS 1,224   142,290
CODE QUALITY DESCRIPTION COUNT LTH WTH UNITS UNIT PRICE ORIG % COND BLDG# SIZE FACT AYB EYB ANN DEP RATE OVR % COND OB/XF DEPR. VALUE
TOTAL OB/XF VALUE 0
BUILDING DIMENSIONS BAS=W20S10W10S12W2S17E32N39Area:1104;STP=W4S10E4N10Area:40;STP=S4E20N4W20Area:80;TotalArea:1224  
LAND INFORMATION
HIGHEST AND BEST USE USE CODE LOCAL ZONING FRON TAGE DEPTH DEPTH / SIZE LND MOD COND FACT OTHER ADJUSTMENTS AND NOTES
  RF   AC   LC  TO  OT
ROAD
TYPE
LAND UNIT PRICE TOTAL LAND UNITS UNT TYP TOTAL ADJST ADJUSTED UNIT PRICE LAND VALUE OVERRIDE VALUE LAND NOTES
0100 0100 R-6 52 123 0.9400 2 1.0000
  
  150.00 52.000 FF 0.940 141.00 7332    
TOTAL MARKET LAND DATA     7,330  
TOTAL PRESENT USE DATA