WAYNE COUNTY 4/2/2026 9:22:32 PM
POWELL GENE NELSON & W LADDAWA        N Return/Appeal Notes:   Parcel: 2681599765
204 LITTLE RIVER DR PLAT: / UNIQ ID 38044
48620     ID NO: 08G06019001022A
COUNTYWIDE ADVALOREM TAX (100), FIRE - LITTLE RIVER (100), SW FFEEFEE (1)        CARD NO. 1 of 1  
Reval Year: 2025 Tax Year: 2026 204 LITTLE RIVER DR ST 2 CARDS 0.7200 AC   SRC=  
Appraised by 60 on 10/26/2010 08019 HOOKS MEADOW TW-08 CI-00 FR-19 EX- AT- LAST ACTION 20240129
CONSTRUCTION DETAIL MARKET VALUE   DEPRECIATION CORRELATION OF VALUE
Foundation - 3
Continuous Footing 5.00
Sub Floor System - 4
PLYWOOD 6.00
Exterior Walls - 10
Aluminum/Vinyl Siding 30.00
Roofing Structure - 03
Gable 4.00
Roofing Cover - 03
Asphalt or Comp Shingle 4.00
Interior Wall Construction - 5
Drywall/Sheetrock 27.00
Interior Floor Cover - 08
Sheet Vinyl 9.00
Interior Floor Cover - 14
Carpet 0.00
Heating Fuel - 03
Gas 1.00
Heating Type - 10
Heat Pump 4.00
Air Conditioning Type - 03
Central 4.00
Bedrooms/Bathrooms/Half-Bathrooms
4/2/1 15.000
Bedrooms
BAS - 1 FUS - 3 LL - 0 _
Bathrooms
BAS - 1 FUS - 1 LL - 0 _
Half-Bathrooms
BAS - 1 FUS - 0 LL - 0 _
Office
BAS - 0 FUS - 0 LL - 0 0
TOTAL POINT VALUE 109.000
BUILDING ADJUSTMENTS
Quality 5 Average 1.0000
Shape/Design 5 Market Adjustment 1.0800
Size Size Size 0.9800
TOTAL ADJUSTMENT FACTOR 1.060
TOTAL QUALITY INDEX 115
USE MOD Eff. Area QUAL BASE RATE RCN EYB AYB
   Standard  0.27000
CREDENCE TO MARKET
50 01 2,365 115 143.75 342469 1998 1988 % GOOD 73.0
DEPR. BUILDING VALUE - CARD 250,000
TYPE: RURAL SINGLE FAMILY RESIDENTIAL Single Family Residential
STYLE: 2 - 1.5 Stories
 

Click on image to enlarge
DEPR. OB/XF VALUE - CARD 13,880
MARKET LAND VALUE - CARD 40,000
TOTAL MARKET VALUE - CARD 303,880
TOTAL APPRAISED VALUE - CARD 303,880
TOTAL APPRAISED VALUE - PARCEL 303,880
TOTAL PRESENT USE VALUE - PARCEL 0
TOTAL VALUE DEFERRED - PARCEL 0
TOTAL TAXABLE VALUE - PARCEL $ 303,880
PRIOR
BUILDING VALUE 162,860
OBXF VALUE 16,500
LAND VALUE 24,000
PRESENT USE VALUE 0
DEFERRED VALUE 0
TOTAL VALUE 203,360
PERMIT
CODE DATE NOTE NUMBER AMOUNT
ROUT: WTRSHD:
SALES DATA
OFF. RECORD DATE DEED TYPE Q/U V/I INDICATE SALES PRICE
BOOK PAGE MO YR
01912 0149 12 2001 WD U I 153000
01414 0311 2 1994 WD U I 121500
01230 0312 4 1989 WD U I 0
HEATED AREA 1,980
NOTES
PV ON NEW HSE FOR 1989
P3-89 HSE COMP FOR 1990
SEE 22B
P12-02 GARG FOR 2005
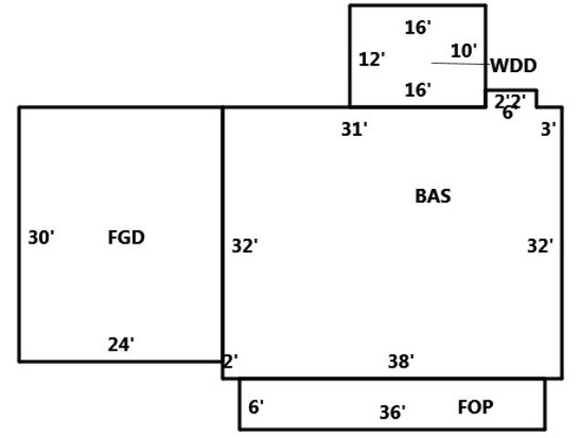
SUBAREA
TYPE GS AREA % RPL CS
BAS 1,292 100 185725
FGD 720 040 41400
FOP 216 030 9344
FUS* 688 090 88981
UAT* 720 010 10350
WDD 192 015 4169
FIREPLACE 4 - 2 Story Single/1 Double 2,500
SUBAREA TOTALS 3,828   342,469
CODE QUALITY DESCRIPTION COUNT LTH WTH UNITS UNIT PRICE ORIG % COND BLDG# AYB EYB ANN DEP RATE OVR % COND OB/XF DEPR. VALUE
02 2 GARAGE   30 50 1,500 25.00 100 1 2004 2004 S3   37 13875
TOTAL OB/XF VALUE 13,875
BUILDING DIMENSIONS BAS=W3N2W6S2W31S32E2E38N32Area:1292;WDD=N10W16S12E16N2Area:192;FGD=W24S30E24N30Area:720;FOP=S6E36N6W36Area:216;FUS=Area: :688;UAT=Area:720;TotalArea:3828  
LAND INFORMATION
HIGHEST AND BEST USE USE CODE LOCAL ZONING FRON TAGE DEPTH DEPTH / SIZE LND MOD COND FACT OTHER ADJUSTMENTS AND NOTES
  RF   AC   LC  TO  OT
ROAD
TYPE
LAND UNIT PRICE TOTAL LAND UNITS UNT TYP TOTAL ADJST ADJUSTED UNIT PRICE LAND VALUE OVERRIDE VALUE LAND NOTES
5010 5010   0 0 1.0000 0 1.0000
  .72AC
  40,000.00 1.000 LT 1.000 40,000.00 40000 0  
TOTAL MARKET LAND DATA     40,000  
TOTAL PRESENT USE DATA