WAYNE COUNTY 4/4/2026 8:21:08 PM
BEST ANNE W   Return/Appeal Notes:   Parcel: 2596426770
107 ROBIN LAKE DR PLAT: / UNIQ ID 13159
770842     ID NO: 02G11092001039
COUNTYWIDE ADVALOREM TAX (100), FIRE - DUDLEY (100), SW FFEEFEE (1)        CARD NO. 1 of 1  
Reval Year: 2025 Tax Year: 2026 LT 39 ROBIN LAKE 1.0000 LT   SRC=  
Appraised by 88 on 06/08/2010 02092 ROBIN LAKE ESTATES TW-02 CI-00 FR-04 EX- AT- LAST ACTION 20250827
CONSTRUCTION DETAIL MARKET VALUE   DEPRECIATION CORRELATION OF VALUE
Foundation - 3
Continuous Footing 5.00
Sub Floor System - 4
PLYWOOD 6.00
Exterior Walls - 08
Masonite on Sheathing 32.00
Exterior Walls - 21
Face Brick 0.00
Roofing Structure - 03
Gable 4.00
Roofing Cover - 03
Asphalt or Comp Shingle 4.00
Interior Wall Construction - 5
Drywall/Sheetrock 27.00
Interior Floor Cover - 14
Carpet 9.00
Interior Floor Cover - 08
Sheet Vinyl 0.00
Heating Fuel - 04
Electric 1.00
Heating Type - 04
Forced Air-Ducted 4.00
Air Conditioning Type - 03
Central 4.00
Bedrooms/Bathrooms/Half-Bathrooms
3/2/0 12.000
Bedrooms
BAS - 3 FUS - 0 LL - 0 _
Bathrooms
BAS - 2 FUS - 0 LL - 0 _
Half-Bathrooms
BAS - 0 FUS - 0 LL - 0 _
Office
BAS - 0 FUS - 0 LL - 0 0
TOTAL POINT VALUE 108.000
BUILDING ADJUSTMENTS
Quality 5 Average 1.0000
Shape/Design 1 Market Adjustment 1.0000
Size Size Size 0.9800
TOTAL ADJUSTMENT FACTOR 0.980
TOTAL QUALITY INDEX 106
USE MOD Eff. Area QUAL BASE RATE RCN EYB AYB
   Standard  0.50000
CREDENCE TO MARKET
01 01 2,072 106 132.50 276541 1975 1973 % GOOD 50.0
DEPR. BUILDING VALUE - CARD 138,270
TYPE: SINGLE FAMILY RESIDENTIAL Single Family Residential
STYLE: 1 - 1.0 Story
 

Click on image to enlarge
DEPR. OB/XF VALUE - CARD 0
MARKET LAND VALUE - CARD 25,000
TOTAL MARKET VALUE - CARD 163,270
TOTAL APPRAISED VALUE - CARD 163,270
TOTAL APPRAISED VALUE - PARCEL 163,270
TOTAL PRESENT USE VALUE - PARCEL 0
TOTAL VALUE DEFERRED - PARCEL 0
TOTAL TAXABLE VALUE - PARCEL $ 163,270
PRIOR
BUILDING VALUE 99,520
OBXF VALUE 0
LAND VALUE 18,000
PRESENT USE VALUE 0
DEFERRED VALUE 0
TOTAL VALUE 117,520
PERMIT
CODE DATE NOTE NUMBER AMOUNT
ROUT: WTRSHD:
SALES DATA
OFF. RECORD DATE DEED TYPE Q/U V/I INDICATE SALES PRICE
BOOK PAGE MO YR
01763 0619 3 2000 WD U I 100000
00900 0773 1 1976 WD U I 0
HEATED AREA 1,964
NOTES
 
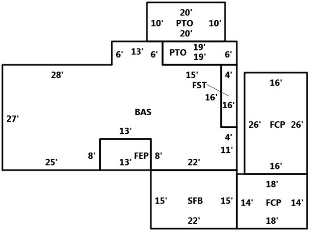
SUBAREA
TYPE GS AREA % RPL CS
BAS 1,530 100 202725
FCP 668 025 22128
FEP 104 070 9673
FST 64 035 2915
PTO 314 005 2120
SFB 330 080 34980
FIREPLACE 3 - 1 Story Single 2,000
SUBAREA TOTALS 3,010   276,541
CODE QUALITY DESCRIPTION COUNT LTH WTH UNITS UNIT PRICE ORIG % COND BLDG# SIZE FACT AYB EYB ANN DEP RATE OVR % COND OB/XF DEPR. VALUE
TOTAL OB/XF VALUE 0
BUILDING DIMENSIONS BAS=W15N6W13S6W28S27E25N8E13S8E22N11W4N16Area:1530;FEP=E13N8W13S8Area:104;SFB=S15E22N15W22Area:330;FST=N16W4S16E4Area:64 4;PTO=E19S6W19N6Area:114;PTO=N10W20S10E20Area:200;FCP=E18N14W18S14Area:252;FCP=N26W16S26E16Area:416;TotalArea:3010  
LAND INFORMATION
HIGHEST AND BEST USE USE CODE LOCAL ZONING FRON TAGE DEPTH DEPTH / SIZE LND MOD COND FACT OTHER ADJUSTMENTS AND NOTES
  RF   AC   LC  TO  OT
ROAD
TYPE
LAND UNIT PRICE TOTAL LAND UNITS UNT TYP TOTAL ADJST ADJUSTED UNIT PRICE LAND VALUE OVERRIDE VALUE LAND NOTES
5010 5010   0 0 1.0000 0 1.0000     25,000.00 1.000 LT 1.000 25,000.00 25000 0  
TOTAL MARKET LAND DATA     25,000  
TOTAL PRESENT USE DATA