WAYNE COUNTY 4/3/2026 7:34:23 PM
BEST BEVERLY PEACOCK   Return/Appeal Notes:   Parcel: 2685821162
942 UNION GROVE CH RD PLAT: / UNIQ ID 40416
771646     ID NO: 09G03000001012
COUNTYWIDE ADVALOREM TAX (100), FIRE - NAHUNTA (100), SW FFEEFEE (1)        CARD NO. 1 of 1  
Reval Year: 2025 Tax Year: 2026 UNION GROVE CHURCH RD 65.0000 AC   SRC=  
Appraised by 88 on 11/17/2010 09902 GREATSWAMP WEST SIDE TW-09 CI-00 FR-09 EX- AT- LAST ACTION 20251125
CONSTRUCTION DETAIL MARKET VALUE   DEPRECIATION CORRELATION OF VALUE
Foundation - 3
Continuous Footing 5.00
Sub Floor System - 1
Earth 0.00
Exterior Walls - 10
Aluminum/Vinyl Siding 30.00
Roofing Structure - 04
Hip 5.00
Roofing Cover - 12
Modular Metal 4.00
Interior Wall Construction - 5
Drywall/Sheetrock 27.00
Interior Floor Cover - 08
Sheet Vinyl 9.00
Heating Fuel - 03
Gas 1.00
Heating Type - 10
Heat Pump 4.00
Air Conditioning Type - 03
Central 4.00
Bedrooms/Bathrooms/Half-Bathrooms
3/1/0 8.000
Bedrooms
BAS - 3 FUS - 0 LL - 0 _
Bathrooms
BAS - 1 FUS - 0 LL - 0 _
Half-Bathrooms
BAS - 0 FUS - 0 LL - 0 _
Office
BAS - 0 FUS - 0 LL - 0 0
TOTAL POINT VALUE 97.000
BUILDING ADJUSTMENTS
Quality 3 Below Average 0.9000
Shape/Design 1 Market Adjustment 1.0000
Size Size Size 1.0000
TOTAL ADJUSTMENT FACTOR 0.900
TOTAL QUALITY INDEX 87
USE MOD Eff. Area QUAL BASE RATE RCN EYB AYB
   Standard  0.70000
CREDENCE TO MARKET
50 01 1,490 87 108.75 163837 1935 1874 % GOOD 30.0
DEPR. BUILDING VALUE - CARD 49,150
TYPE: RURAL SINGLE FAMILY RESIDENTIAL Single Family Residential
STYLE: 1 - 1.0 Story
 

Click on image to enlarge
DEPR. OB/XF VALUE - CARD 0
MARKET LAND VALUE - CARD 327,720
TOTAL MARKET VALUE - CARD 376,870
TOTAL APPRAISED VALUE - CARD 376,870
TOTAL APPRAISED VALUE - PARCEL 376,870
TOTAL PRESENT USE VALUE - PARCEL 119,270
TOTAL VALUE DEFERRED - PARCEL 257,600
TOTAL TAXABLE VALUE - PARCEL $ 119,270
PRIOR
BUILDING VALUE 31,290
OBXF VALUE 0
LAND VALUE 242,100
PRESENT USE VALUE 58,980
DEFERRED VALUE 183,120
TOTAL VALUE 273,390
PERMIT
CODE DATE NOTE NUMBER AMOUNT
ROUT: WTRSHD:
SALES DATA
OFF. RECORD DATE DEED TYPE Q/U V/I INDICATE SALES PRICE
BOOK PAGE MO YR
04033 0870 11 2025 WD A I 0
00906 0307 1 1976 WD U I 0
0000E 0578 1 2000 WB U I 0
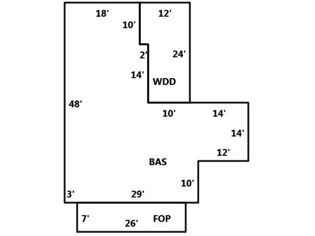
HEATED AREA 1,396
NOTES
TOB FR H01-4-3
P10-95 NEW SYS. FOR 96
SUBAREA
TYPE GS AREA % RPL CS
BAS 1,396 100 151815
FOP 182 030 5981
WDD 260 015 4241
FIREPLACE 3 - 1 Story Single 1,800
SUBAREA TOTALS 1,838   163,837
CODE QUALITY DESCRIPTION COUNT LTH WTH UNITS UNIT PRICE ORIG % COND BLDG# SIZE FACT AYB EYB ANN DEP RATE OVR % COND OB/XF DEPR. VALUE
TOTAL OB/XF VALUE 0
BUILDING DIMENSIONS BAS=W18S48E3E29N10E12N14W14W10N14W2N10Area:1396;FOP=S7E26N7W26Area:182;WDD=N24W12S10E2S14E10Area:260;TotalArea:1838  
LAND INFORMATION
HIGHEST AND BEST USE USE CODE LOCAL ZONING FRON TAGE DEPTH DEPTH / SIZE LND MOD COND FACT OTHER ADJUSTMENTS AND NOTES
  RF   AC   LC  TO  OT
ROAD
TYPE
LAND UNIT PRICE TOTAL LAND UNITS UNT TYP TOTAL ADJST ADJUSTED UNIT PRICE LAND VALUE OVERRIDE VALUE LAND NOTES
5010 5010   0 0 1.0000 0 1.0000
  
  26,000.00 1.000 AC 1.000 26,000.00 26000 0  
5111 5111   0 0 0.9500 0 1.0000
  
  7,100.00 26.000 AC 0.950 6,745.00 175370 0  
6011 6011   0 0 0.9500 0 1.0000
  
  3,500.00 38.000 AC 0.950 3,325.00 126350 0  
TOTAL MARKET LAND DATA 65.000   327,720  
5010 5010   0 0 1.0000 5 1.0000
  
  26,000.00 1.000 AC 1.000 26,000.00 26000 0  
5110 5110   0 0 1.0000 5 1.0000
  
  1,200.00 26.000 AC 1.000 1,200.00 31200 0  
6110 6110   0 0 1.0000 5 1.0000
  
  340.00 38.000 AC 1.000 340.00 12920 0  
TOTAL PRESENT USE DATA 65.000   70,120