WAYNE COUNTY 4/4/2026 8:22:15 PM
BEST BILLYE C   Return/Appeal Notes:   Parcel: 3519144179
106 HILLDALE LN PLAT: / UNIQ ID 55021
746027     ID NO: 12000139002020
COUNTYWIDE ADVALOREM TAX (100), CITY - GOLDSBORO (100)        CARD NO. 1 of 1  
Reval Year: 2025 Tax Year: 2026 LT 39 PINE HILLS 1.0000 LT   SRC=  
Appraised by 60 on 01302 PILL HILL TW-12 CI-01 FR-00 EX- AT- LAST ACTION 20230322
CONSTRUCTION DETAIL MARKET VALUE   DEPRECIATION CORRELATION OF VALUE
Foundation - 3
Continuous Footing 5.00
Sub Floor System - 4
PLYWOOD 6.00
Exterior Walls - 21
Face Brick 34.00
Roofing Structure - 03
Gable 4.00
Roofing Cover - 03
Asphalt or Comp Shingle 4.00
Interior Wall Construction - 5
Drywall/Sheetrock 27.00
Interior Floor Cover - 12
Hardwood 11.00
Interior Floor Cover - 14
Carpet 0.00
Heating Fuel - 04
Electric 1.00
Heating Type - 04
Forced Air-Ducted 4.00
Air Conditioning Type - 03
Central 4.00
Bedrooms/Bathrooms/Half-Bathrooms
5/3/1 18.000
Bedrooms
BAS - 1 FUS - 4 LL - 0 _
Bathrooms
BAS - 1 FUS - 2 LL - 0 _
Half-Bathrooms
BAS - 1 FUS - 0 LL - 0 _
Office
BAS - 0 FUS - 0 LL - 0 0
TOTAL POINT VALUE 118.000
BUILDING ADJUSTMENTS
Quality 7 Above Average 1.2000
Shape/Design 1 Market Adjustment 1.0000
Size Size Size 0.9500
TOTAL ADJUSTMENT FACTOR 1.140
TOTAL QUALITY INDEX 135
USE MOD Eff. Area QUAL BASE RATE RCN EYB AYB
   Standard  0.43000
CREDENCE TO MARKET
01 01 3,252 135 168.75 553575 1982 1972 % GOOD 57.0
DEPR. BUILDING VALUE - CARD 315,540
TYPE: SINGLE FAMILY RESIDENTIAL Single Family Residential
STYLE: 3 - 2.0 Stories
 

Click on image to enlarge
DEPR. OB/XF VALUE - CARD 430
MARKET LAND VALUE - CARD 75,000
TOTAL MARKET VALUE - CARD 390,970
TOTAL APPRAISED VALUE - CARD 390,970
TOTAL APPRAISED VALUE - PARCEL 390,970
TOTAL PRESENT USE VALUE - PARCEL 0
TOTAL VALUE DEFERRED - PARCEL 0
TOTAL TAXABLE VALUE - PARCEL $ 390,970
PRIOR
BUILDING VALUE 224,290
OBXF VALUE 320
LAND VALUE 75,000
PRESENT USE VALUE 0
DEFERRED VALUE 0
TOTAL VALUE 299,610
PERMIT
CODE DATE NOTE NUMBER AMOUNT
ROUT: WTRSHD:
SALES DATA
OFF. RECORD DATE DEED TYPE Q/U V/I INDICATE SALES PRICE
BOOK PAGE MO YR
00544 0128 1 1961 WD U I 0
HEATED AREA 3,266
NOTES
C-FORM FOR 1988 CHECK MEAS AND COND
SUBAREA
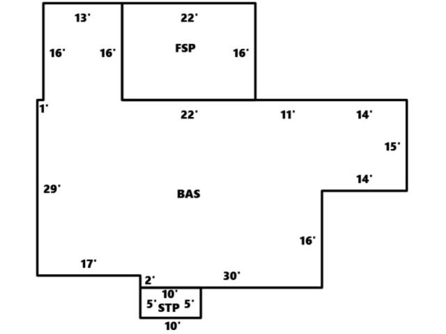
TYPE GS AREA % RPL CS
BAS 1,841 100 310669
FSP 352 035 20756
FUS* 1,425 090 216506
STP 50 010 844
FIREPLACE 5 - Two or More 4,800
SUBAREA TOTALS 3,668   553,575
CODE QUALITY DESCRIPTION COUNT LTH WTH UNITS UNIT PRICE ORIG % COND BLDG# AYB EYB ANN DEP RATE OVR % COND OB/XF DEPR. VALUE
01 2 STORAG BLD   12 18 216 20.00 100 1 1970 1970 S3   10 432
TOTAL OB/XF VALUE 432
BUILDING DIMENSIONS BAS=W11W22N16W13S16W1S29E17S2E30N16E14N15W14Area:1841;FSP=N16W22S16E22Area:352;STP=S5E10N5W10Area:50;FUS=Area:1425;Total lArea:3668  
LAND INFORMATION
HIGHEST AND BEST USE USE CODE LOCAL ZONING FRON TAGE DEPTH DEPTH / SIZE LND MOD COND FACT OTHER ADJUSTMENTS AND NOTES
  RF   AC   LC  TO  OT
ROAD
TYPE
LAND UNIT PRICE TOTAL LAND UNITS UNT TYP TOTAL ADJST ADJUSTED UNIT PRICE LAND VALUE OVERRIDE VALUE LAND NOTES
0100 0100 R-16 100 200 1.0000 0 1.0000
  
  75,000.00 1.000 LT 1.000 75,000.00 75000 0  
TOTAL MARKET LAND DATA     75,000  
TOTAL PRESENT USE DATA