WAYNE COUNTY 4/3/2026 7:09:51 PM
BEST ANN S ETAL   Return/Appeal Notes:   Parcel: 3602418388
204 AIRPORT RD PLAT: / UNIQ ID 31144
752216     ID NO: 06E05000007024
COUNTYWIDE ADVALOREM TAX (100), FIRE - BELFAST (100), SW FFEEFEE (1)        CARD NO. 1 of 1  
Reval Year: 2025 Tax Year: 2026 204 AIRPORT RD 1.0000 LT   SRC=  
Appraised by 88 on 09/27/2010 06901 STONEY CREEK EAST TW-06 CI-00 FR-11 EX- AT- LAST ACTION 20230726
CONSTRUCTION DETAIL MARKET VALUE   DEPRECIATION CORRELATION OF VALUE
Foundation - 3
Continuous Footing 5.00
Sub Floor System - 5
Woo w/ Sub Floor 6.00
Exterior Walls - 21
Face Brick 34.00
Roofing Structure - 03
Gable 4.00
Roofing Cover - 03
Asphalt or Comp Shingle 4.00
Interior Wall Construction - 4
Plywood Panel 24.00
Interior Wall Construction - 5
Drywall/Sheetrock 0.00
Interior Floor Cover - 14
Carpet 10.00
Heating Fuel - 03
Gas 1.00
Heating Type - 10
Heat Pump 4.00
Air Conditioning Type - 03
Central 4.00
Bedrooms/Bathrooms/Half-Bathrooms
3/1/0 8.000
Bedrooms
BAS - 3 FUS - 0 LL - 0 _
Bathrooms
BAS - 1 FUS - 0 LL - 0 _
Half-Bathrooms
BAS - 0 FUS - 0 LL - 0 _
Office
BAS - 0 FUS - 0 LL - 0 0
TOTAL POINT VALUE 104.000
BUILDING ADJUSTMENTS
Quality 5 Average 1.0000
Shape/Design 3 Market Adjustment 1.0400
Size Size Size 1.0500
TOTAL ADJUSTMENT FACTOR 1.090
TOTAL QUALITY INDEX 114
USE MOD Eff. Area QUAL BASE RATE RCN EYB AYB
   Standard  0.55000
CREDENCE TO MARKET
50 01 1,235 114 142.50 175988 1970 1961 % GOOD 45.0
DEPR. BUILDING VALUE - CARD 79,200
TYPE: RURAL SINGLE FAMILY RESIDENTIAL Single Family Residential
STYLE: 1 - 1.0 Story
 

Click on image to enlarge
DEPR. OB/XF VALUE - CARD 0
MARKET LAND VALUE - CARD 19,600
TOTAL MARKET VALUE - CARD 98,800
TOTAL APPRAISED VALUE - CARD 98,800
TOTAL APPRAISED VALUE - PARCEL 98,800
TOTAL PRESENT USE VALUE - PARCEL 0
TOTAL VALUE DEFERRED - PARCEL 0
TOTAL TAXABLE VALUE - PARCEL $ 98,800
PRIOR
BUILDING VALUE 57,440
OBXF VALUE 0
LAND VALUE 13,300
PRESENT USE VALUE 0
DEFERRED VALUE 0
TOTAL VALUE 70,740
PERMIT
CODE DATE NOTE NUMBER AMOUNT
ROUT: WTRSHD:
SALES DATA
OFF. RECORD DATE DEED TYPE Q/U V/I INDICATE SALES PRICE
BOOK PAGE MO YR
03456 0689 8 2019 WD C I 1500
00545 0317 1 1981 WD U I 0
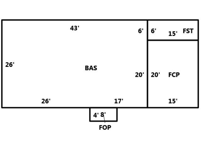
HEATED AREA 1,118
NOTES
 
SUBAREA
TYPE GS AREA % RPL CS
BAS 1,118 100 159315
FCP 300 025 10688
FOP 32 030 1425
FST 90 035 4560
FIREPLACE 1 - None 0
SUBAREA TOTALS 1,540   175,988
CODE QUALITY DESCRIPTION COUNT LTH WTH UNITS UNIT PRICE ORIG % COND BLDG# SIZE FACT AYB EYB ANN DEP RATE OVR % COND OB/XF DEPR. VALUE
TOTAL OB/XF VALUE 0
BUILDING DIMENSIONS BAS=W43S26E26E17N20N6Area:1118;FOP=S4E8N4W8Area:32;FCP=E15N20W15S20Area:300;FST=E15N6W15S6Area:90;TotalArea:1540  
LAND INFORMATION
HIGHEST AND BEST USE USE CODE LOCAL ZONING FRON TAGE DEPTH DEPTH / SIZE LND MOD COND FACT OTHER ADJUSTMENTS AND NOTES
  RF   AC   LC  TO  OT
ROAD
TYPE
LAND UNIT PRICE TOTAL LAND UNITS UNT TYP TOTAL ADJST ADJUSTED UNIT PRICE LAND VALUE OVERRIDE VALUE LAND NOTES
5010 5010   0 0 1.0000 0 0.7000
  .44AC
  28,000.00 1.000 LT 0.700 19,600.00 19600    
TOTAL MARKET LAND DATA     19,600  
TOTAL PRESENT USE DATA