WAYNE COUNTY 4/4/2026 8:21:21 PM
WILLIAMS MARY L        BEST ANGELA Return/Appeal Notes:   Parcel: 3529567679
606 LONGLEAF AVE PLAT: / UNIQ ID 20745
752021     ID NO: 04D07008005002
COUNTYWIDE ADVALOREM TAX (100), CITY - GOLDSBORO (100)        CARD NO. 1 of 1  
Reval Year: 2025 Tax Year: 2026 LT5-8 BLK B CENT HGT 1.0000 LT   SRC=  
Appraised by 60 on 07/28/2010 04008 CENTRAL HEIGHTS TW-04 CI-01 FR-00 EX- AT- LAST ACTION 20240904
CONSTRUCTION DETAIL MARKET VALUE   DEPRECIATION CORRELATION OF VALUE
Foundation - 3
Continuous Footing 5.00
Sub Floor System - 4
PLYWOOD 6.00
Exterior Walls - 21
Face Brick 34.00
Roofing Structure - 03
Gable 4.00
Roofing Cover - 03
Asphalt or Comp Shingle 4.00
Interior Wall Construction - 5
Drywall/Sheetrock 27.00
Interior Floor Cover - 08
Sheet Vinyl 9.00
Interior Floor Cover - 14
Carpet 0.00
Heating Fuel - 04
Electric 1.00
Heating Type - 10
Heat Pump 4.00
Air Conditioning Type - 03
Central 4.00
Bedrooms/Bathrooms/Half-Bathrooms
3/2/0 12.000
Bedrooms
BAS - 3 FUS - 0 LL - 0 _
Bathrooms
BAS - 2 FUS - 0 LL - 0 _
Half-Bathrooms
BAS - 0 FUS - 0 LL - 0 _
Office
BAS - 0 FUS - 0 LL - 0 0
TOTAL POINT VALUE 110.000
BUILDING ADJUSTMENTS
Quality 4 Below Average + 0.9500
Shape/Design 1 Market Adjustment 1.0000
Size Size Size 0.9800
TOTAL ADJUSTMENT FACTOR 0.930
TOTAL QUALITY INDEX 102
USE MOD Eff. Area QUAL BASE RATE RCN EYB AYB
   Standard  0.54000
CREDENCE TO MARKET
50 01 1,780 102 127.50 228851 1971 1971 % GOOD 46.0
DEPR. BUILDING VALUE - CARD 105,270
TYPE: RURAL SINGLE FAMILY RESIDENTIAL Single Family Residential
STYLE: 1 - 1.0 Story
 

Click on image to enlarge
DEPR. OB/XF VALUE - CARD 880
MARKET LAND VALUE - CARD 25,000
TOTAL MARKET VALUE - CARD 131,150
TOTAL APPRAISED VALUE - CARD 131,150
TOTAL APPRAISED VALUE - PARCEL 131,150
TOTAL PRESENT USE VALUE - PARCEL 0
TOTAL VALUE DEFERRED - PARCEL 0
TOTAL TAXABLE VALUE - PARCEL $ 131,150
PRIOR
BUILDING VALUE 76,520
OBXF VALUE 660
LAND VALUE 15,000
PRESENT USE VALUE 0
DEFERRED VALUE 0
TOTAL VALUE 92,180
PERMIT
CODE DATE NOTE NUMBER AMOUNT
ROUT: WTRSHD:
SALES DATA
OFF. RECORD DATE DEED TYPE Q/U V/I INDICATE SALES PRICE
BOOK PAGE MO YR
03451 0266 7 2019 WD Q I 95000
00859 0192 1 1974 WD U I 0
0016E 0605 12 2017 WB C I 0
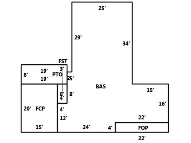
HEATED AREA 1,660
NOTES
 
SUBAREA
TYPE GS AREA % RPL CS
BAS 1,660 100 211650
FCP 300 025 9563
FOP 88 030 3315
FST 32 035 1403
PTO 152 005 1020
FIREPLACE 3 - 1 Story Single 1,900
SUBAREA TOTALS 2,232   228,851
CODE QUALITY DESCRIPTION COUNT LTH WTH UNITS UNIT PRICE ORIG % COND BLDG# AYB EYB ANN DEP RATE OVR % COND OB/XF DEPR. VALUE
01 2 STORAG BLD   20 22 440 20.00 100 1 1975 1975 S3   10 880
TOTAL OB/XF VALUE 880
BUILDING DIMENSIONS BAS=W25S29W2S5S8W4S12E24N4E22N16W15N34Area:1660;PTO=N3W19S8E19N5Area:152;FST=W4S8E4N8Area:32;FCP=W15S20E15N20Area:300;FO OP=N4E22S4W22Area:88;TotalArea:2232  
LAND INFORMATION
HIGHEST AND BEST USE USE CODE LOCAL ZONING FRON TAGE DEPTH DEPTH / SIZE LND MOD COND FACT OTHER ADJUSTMENTS AND NOTES
  RF   AC   LC  TO  OT
ROAD
TYPE
LAND UNIT PRICE TOTAL LAND UNITS UNT TYP TOTAL ADJST ADJUSTED UNIT PRICE LAND VALUE OVERRIDE VALUE LAND NOTES
5010 5010   0 0 1.0000 0 1.0000     25,000.00 1.000 LT 1.000 25,000.00 25000 0  
TOTAL MARKET LAND DATA     25,000  
TOTAL PRESENT USE DATA