WAYNE COUNTY 4/4/2026 8:20:18 PM
BEST BETTY W   Return/Appeal Notes:   Parcel: 2546523934
3728 S US 13 HWY PLAT: / UNIQ ID 1703
5261420     ID NO: 01K04000006002
COUNTYWIDE ADVALOREM TAX (100), FIRE - GRANTHAM (100), SW FFEEFEE (1)        CARD NO. 1 of 1  
Reval Year: 2025 Tax Year: 2026 3728 S US 13 HWY 1.4900 AC   SRC=  
Appraised by 88 on 07/23/2010 01904 GRANTHAM TOWNSHIP TW-01 CI-00 FR-03 EX- AT- LAST ACTION 20240909
CONSTRUCTION DETAIL MARKET VALUE   DEPRECIATION CORRELATION OF VALUE
Foundation - 3
Continuous Footing 5.00
Sub Floor System - 2
Slab on Grade 4.00
Exterior Walls - 21
Face Brick 34.00
Roofing Structure - 03
Gable 4.00
Roofing Cover - 03
Asphalt or Comp Shingle 4.00
Interior Wall Construction - 4
Plywood Panel 24.00
Interior Wall Construction - 5
Drywall/Sheetrock 0.00
Interior Floor Cover - 08
Sheet Vinyl 9.00
Interior Floor Cover - 14
Carpet 0.00
Heating Fuel - 03
Gas 1.00
Heating Type - 04
Forced Air-Ducted 4.00
Air Conditioning Type - 03
Central 4.00
Bedrooms/Bathrooms/Half-Bathrooms
3/2/0 12.000
Bedrooms
BAS - 3 FUS - 0 LL - 0 _
Bathrooms
BAS - 2 FUS - 0 LL - 0 _
Half-Bathrooms
BAS - 0 FUS - 0 LL - 0 _
Office
BAS - 0 FUS - 0 LL - 0 0
TOTAL POINT VALUE 105.000
BUILDING ADJUSTMENTS
Quality 5 Average 1.0000
Shape/Design 1 Market Adjustment 1.0000
Size Size Size 0.9500
TOTAL ADJUSTMENT FACTOR 0.950
TOTAL QUALITY INDEX 100
USE MOD Eff. Area QUAL BASE RATE RCN EYB AYB
   Standard  0.47000
CREDENCE TO MARKET
50 01 2,645 100 125.00 332625 1978 1958 % GOOD 53.0
DEPR. BUILDING VALUE - CARD 176,290
TYPE: RURAL SINGLE FAMILY RESIDENTIAL Single Family Residential
STYLE: 1 - 1.0 Story
 

Click on image to enlarge
DEPR. OB/XF VALUE - CARD 130
MARKET LAND VALUE - CARD 31,180
TOTAL MARKET VALUE - CARD 207,600
TOTAL APPRAISED VALUE - CARD 207,600
TOTAL APPRAISED VALUE - PARCEL 207,600
TOTAL PRESENT USE VALUE - PARCEL 0
TOTAL VALUE DEFERRED - PARCEL 0
TOTAL TAXABLE VALUE - PARCEL $ 207,600
PRIOR
BUILDING VALUE 108,080
OBXF VALUE 100
LAND VALUE 20,280
PRESENT USE VALUE 0
DEFERRED VALUE 0
TOTAL VALUE 128,460
PERMIT
CODE DATE NOTE NUMBER AMOUNT
ROUT: WTRSHD:
SALES DATA
OFF. RECORD DATE DEED TYPE Q/U V/I INDICATE SALES PRICE
BOOK PAGE MO YR
01090 0110 1 1984   U I 0
HEATED AREA 2,441
NOTES
 
SUBAREA
TYPE GS AREA % RPL CS
BAS 2,441 100 305125
FCP 416 025 13000
FOP 224 030 8375
FSP 45 035 2000
FST 48 035 2125
FIREPLACE 3 - 1 Story Single 2,000
SUBAREA TOTALS 3,174   332,625
CODE QUALITY DESCRIPTION COUNT LTH WTH UNITS UNIT PRICE ORIG % COND BLDG# AYB EYB ANN DEP RATE OVR % COND OB/XF DEPR. VALUE
01 2 STORAG BLD   8 8 64 20.00 100 1 1965 1965 S3   10 128
TOTAL OB/XF VALUE 128
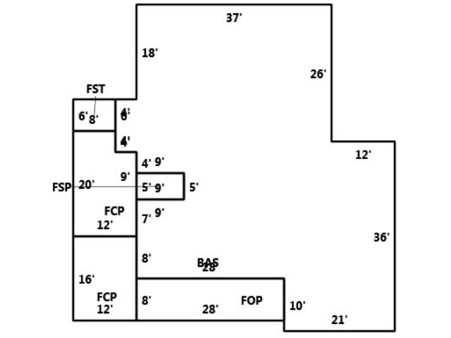
BUILDING DIMENSIONS BAS=W37S18W4S6S4E4S4E9S5W9S7S8E28S10E21N36W12N26Area:2441;FST=W8S6E8N6Area:48;FCP=W8S20E12N7N9W4N4Area:224;FSP=E9N5W9S5A Area:45;FCP=W12S16E12N16Area:192;FOP=S8E28N8W28Area:224;TotalArea:3174  
LAND INFORMATION
HIGHEST AND BEST USE USE CODE LOCAL ZONING FRON TAGE DEPTH DEPTH / SIZE LND MOD COND FACT OTHER ADJUSTMENTS AND NOTES
  RF   AC   LC  TO  OT
ROAD
TYPE
LAND UNIT PRICE TOTAL LAND UNITS UNT TYP TOTAL ADJST ADJUSTED UNIT PRICE LAND VALUE OVERRIDE VALUE LAND NOTES
5010 5010   0 0 1.0000 0 1.0000
  
  25,000.00 1.000 AC 1.000 25,000.00 25000 0  
5111 5111   0 0 1.9400 0 1.0000
  
  6,500.00 0.490 AC 1.940 12,610.00 6179 0  
TOTAL MARKET LAND DATA 1.490   31,180  
TOTAL PRESENT USE DATA