WAYNE COUNTY 4/3/2026 7:05:34 PM
BEST ANNA T   Return/Appeal Notes:   Parcel: 3529081843
308 W NEW HOPE RD PLAT: / UNIQ ID 29120
500690     ID NO: 06D07000004009A
COUNTYWIDE ADVALOREM TAX (100), CITY - GOLDSBORO (100)        CARD NO. 1 of 1  
Reval Year: 2025 Tax Year: 2026 308 W NEW HOPE RD REMARRIED 0.7800 AC   SRC=  
Appraised by 60 on 06902 STONEY CREEK CENTRAL TW-06 CI-01 FR-00 EX- AT- LAST ACTION 20250204
CONSTRUCTION DETAIL MARKET VALUE   DEPRECIATION CORRELATION OF VALUE
Foundation - 4
Spread Footing 6.00
Sub Floor System - 2
Slab on Grade 6.00
Exterior Walls - 08
Masonite on Sheathing 18.00
Roofing Structure - 01
Flat 2.00
Roofing Cover - 04
Built Up Tar Gravel 7.00
Interior Wall Construction - 4
Plywood Panel 12.00
Interior Wall Construction - 5
Drywall/Sheetrock 0.00
Interior Floor Cover - 03
Concrete Finished 4.00
Interior Floor Cover - 05
Asphalt Tile 0.00
Heating Fuel - 02
Oil, Wood, or Coal 0.00
Heating Type - 03
Forced Air-Not Ducted 8.00
Air Conditioning Type - 01
None 0.00
Structural Frame - 02
Wood Frame 10.00
Ceiling & Insulation - 05
Not Suspended - Ceiling Insulated 1.00
Average Rooms Per Floor - 7
Average Rooms Per Floor 0.00
Commercial Heat & Air - 1
None 0.00
Half-Bathrooms
BAS - 0 FUS - 0 LL - 0 _
Plumbing Fixtures
3.00 4.000
Office
BAS - 0 FUS - 0 LL - 0 0
TOTAL POINT VALUE 78.000
BUILDING ADJUSTMENTS
Non-Std Wall Height 0 Non-Std Wall Height 1.0000
Quality 6 Average + 1.1000
Shape/Design 1 Market Adjustment 1.0000
Size Size Size 1.0000
TOTAL ADJUSTMENT FACTOR 1.100
TOTAL QUALITY INDEX 86
USE MOD Eff. Area QUAL BASE RATE RCN EYB AYB
   Standard  0.45000
CREDENCE TO MARKET
10 07 2,399 86 106.64 255830 2000 1957 % GOOD 55.0
DEPR. BUILDING VALUE - CARD 140,710
TYPE: COMMERCIAL Commercial
STYLE: 1 - 1.0 Story
 

Click on image to enlarge
DEPR. OB/XF VALUE - CARD 7,760
MARKET LAND VALUE - CARD 56,250
TOTAL MARKET VALUE - CARD 204,720
TOTAL APPRAISED VALUE - CARD 204,720
TOTAL APPRAISED VALUE - PARCEL 204,720
TOTAL PRESENT USE VALUE - PARCEL 0
TOTAL VALUE DEFERRED - PARCEL 0
TOTAL TAXABLE VALUE - PARCEL $ 204,720
PRIOR
BUILDING VALUE 96,760
OBXF VALUE 710
LAND VALUE 43,750
PRESENT USE VALUE 0
DEFERRED VALUE 0
TOTAL VALUE 141,220
PERMIT
CODE DATE NOTE NUMBER AMOUNT
ROUT: WTRSHD:
SALES DATA
OFF. RECORD DATE DEED TYPE Q/U V/I INDICATE SALES PRICE
BOOK PAGE MO YR
00837 0143 1 1973 WD U I 0
BUILDING AREA 2,421
NOTES
.22ACTOLT9B PINEWOOD FLORIST
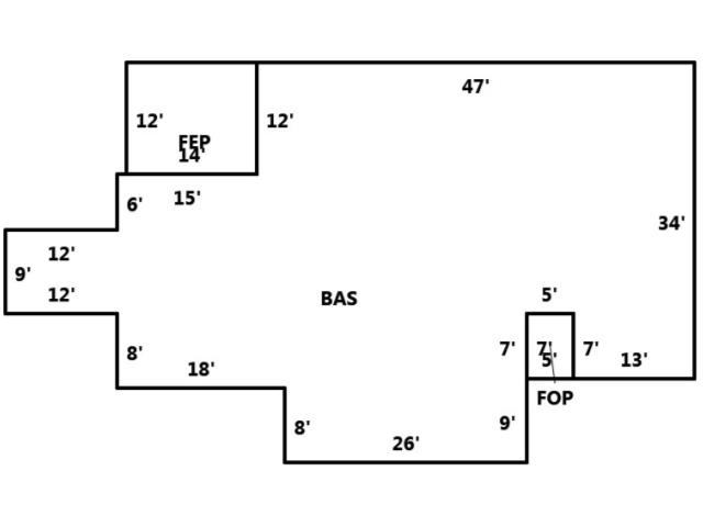
SUBAREA
TYPE GS AREA % RPL CS
BAS 2,253 100 240260
FEP 168 080 14290
FOP 35 035 1280
FIREPLACE 3 - 1 Story Single 0
SUBAREA TOTALS 2,456   255,830
CODE QUALITY DESCRIPTION COUNT LTH WTH UNITS UNIT PRICE ORIG % COND BLDG# AYB EYB ANN DEP RATE OVR % COND OB/XF DEPR. VALUE
    GRN HSE NV   0 0 1 0.00 100 1 1900 1900 0   100 0
01 2 STORAG BLD   34 14 476 20.00 100 1 1975 2012 S3   61 5807
09 1 ASPHPAVING   8 200 1,600 2.00 100 1 2012 2012 S3   61 1952
TOTAL OB/XF VALUE 7,759
BUILDING DIMENSIONS BAS=N34W47S12W15S6W12S9E12S8E18S8E26N9N7E5S7E13Area:2253;FEP=W14S12E14N12Area:168;FOP=E5N7W5S7Area:35;TotalArea:2456  
LAND INFORMATION
HIGHEST AND BEST USE USE CODE LOCAL ZONING FRON TAGE DEPTH DEPTH / SIZE LND MOD COND FACT OTHER ADJUSTMENTS AND NOTES
  RF   AC   LC  TO  OT
ROAD
TYPE
LAND UNIT PRICE TOTAL LAND UNITS UNT TYP TOTAL ADJST ADJUSTED UNIT PRICE LAND VALUE OVERRIDE VALUE LAND NOTES
1000 1000   0 0 1.0000 0 1.2500
  .78AC
  45,000.00 1.000 LT 1.250 56,250.00 56250    
TOTAL MARKET LAND DATA     56,250  
TOTAL PRESENT USE DATA