WAYNE COUNTY 4/4/2026 8:20:17 PM
BEST ANNIE C   Return/Appeal Notes:   Parcel: 2599664584
105 S GEORGIA AVE PLAT: / UNIQ ID 46958
746054     ID NO: 12000056004005
COUNTYWIDE ADVALOREM TAX (100), CITY - GOLDSBORO (100)        CARD NO. 1 of 1  
Reval Year: 2025 Tax Year: 2026 S GEORGIA AVE 1.0000 LT   SRC=  
Appraised by 60 on 01601 BYPASS WEST TW-12 CI-01 FR-00 EX- AT- LAST ACTION 20241001
CONSTRUCTION DETAIL MARKET VALUE   DEPRECIATION CORRELATION OF VALUE
Foundation - 3
Continuous Footing 5.00
Sub Floor System - 5
Woo w/ Sub Floor 6.00
Exterior Walls - 10
Aluminum/Vinyl Siding 30.00
Roofing Structure - 04
Hip 5.00
Roofing Cover - 03
Asphalt or Comp Shingle 4.00
Interior Wall Construction - 3
Plastered 28.00
Interior Floor Cover - 09
Pine or Soft Woods 7.00
Heating Fuel - 03
Gas 1.00
Heating Type - 04
Forced Air-Ducted 4.00
Air Conditioning Type - 01
None 0.00
Bedrooms/Bathrooms/Half-Bathrooms
3/1/0 8.000
Bedrooms
BAS - 3 FUS - 0 LL - 0 _
Bathrooms
BAS - 1 FUS - 0 LL - 0 _
Half-Bathrooms
BAS - 0 FUS - 0 LL - 0 _
Office
BAS - 0 FUS - 0 LL - 0 0
TOTAL POINT VALUE 98.000
BUILDING ADJUSTMENTS
Quality 4 Below Average + 0.9500
Shape/Design 1 Market Adjustment 1.0000
Size Size Size 0.9800
TOTAL ADJUSTMENT FACTOR 0.930
TOTAL QUALITY INDEX 91
USE MOD Eff. Area QUAL BASE RATE RCN EYB AYB
 AP  Additional Physical  0.02000
   Standard  0.70000
CREDENCE TO MARKET
01 01 1,646 91 113.75 191033 1945 1900 % GOOD 28.0
DEPR. BUILDING VALUE - CARD 53,490
TYPE: SINGLE FAMILY RESIDENTIAL Single Family Residential
STYLE: 1 - 1.0 Story
 

Click on image to enlarge
DEPR. OB/XF VALUE - CARD 500
MARKET LAND VALUE - CARD 5,500
TOTAL MARKET VALUE - CARD 59,490
TOTAL APPRAISED VALUE - CARD 59,490
TOTAL APPRAISED VALUE - PARCEL 59,490
TOTAL PRESENT USE VALUE - PARCEL 0
TOTAL VALUE DEFERRED - PARCEL 0
TOTAL TAXABLE VALUE - PARCEL $ 59,490
PRIOR
BUILDING VALUE 30,910
OBXF VALUE 500
LAND VALUE 3,250
PRESENT USE VALUE 0
DEFERRED VALUE 0
TOTAL VALUE 34,660
PERMIT
CODE DATE NOTE NUMBER AMOUNT
ROUT: WTRSHD:
SALES DATA
OFF. RECORD DATE DEED TYPE Q/U V/I INDICATE SALES PRICE
BOOK PAGE MO YR
01785 0303 6 2000 WD U I 0
00671 0285 1 1966 WD U I 0
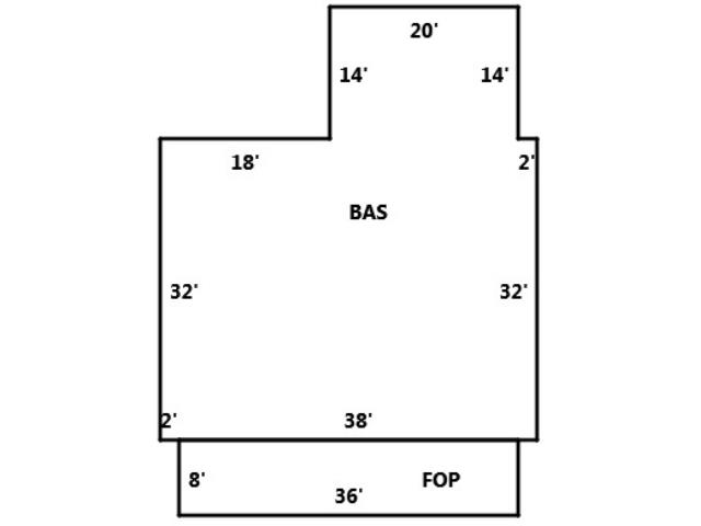
HEATED AREA 1,560
NOTES
 
SUBAREA
TYPE GS AREA % RPL CS
BAS 1,560 100 177450
FOP 288 030 9783
FIREPLACE 5 - Two or More 3,800
SUBAREA TOTALS 1,848   191,033
CODE QUALITY DESCRIPTION COUNT LTH WTH UNITS UNIT PRICE ORIG % COND BLDG# AYB EYB ANN DEP RATE OVR % COND OB/XF DEPR. VALUE
    GARAGE   0 0 1 500.00 100 1 1900 1900 0   100 500
TOTAL OB/XF VALUE 500
BUILDING DIMENSIONS BAS=W20S14W18S32E2E38N32W2N14Area:1560;FOP=S8E36N8W36Area:288;TotalArea:1848  
LAND INFORMATION
HIGHEST AND BEST USE USE CODE LOCAL ZONING FRON TAGE DEPTH DEPTH / SIZE LND MOD COND FACT OTHER ADJUSTMENTS AND NOTES
  RF   AC   LC  TO  OT
ROAD
TYPE
LAND UNIT PRICE TOTAL LAND UNITS UNT TYP TOTAL ADJST ADJUSTED UNIT PRICE LAND VALUE OVERRIDE VALUE LAND NOTES
0100 0100 R-6 50 150 1.0000 2 1.0000     110.00 50.000 FF 1.000 110.00 5500    
TOTAL MARKET LAND DATA     5,500  
TOTAL PRESENT USE DATA