WAYNE COUNTY 4/3/2026 6:18:01 PM
PRICE ALLIE GRIFFIN ETAL   Return/Appeal Notes:   Parcel: 3532695641
583 MARK HERRING RD PLAT: / UNIQ ID 16951
765262     ID NO: 03B14000004010C
COUNTYWIDE ADVALOREM TAX (100), FIRE - SEVEN SPRINGS (100), SW FFEEFEE (1)        CARD NO. 1 of 1  
Reval Year: 2025 Tax Year: 2026 MARK HERRING RD 59.7200 AC   SRC=  
Appraised by 88 on 07/23/2010 03909 INDIAN SPRINGS TOWNSHIP TW-03 CI-00 FR-27 EX- AT- LAST ACTION 20250206
CONSTRUCTION DETAIL MARKET VALUE   DEPRECIATION CORRELATION OF VALUE
Foundation - 4
Spread Footing 6.00
Sub Floor System - 2
Slab on Grade 4.00
Exterior Walls - 10
Aluminum/Vinyl Siding 30.00
Roofing Structure - 03
Gable 4.00
Roofing Cover - 03
Asphalt or Comp Shingle 4.00
Interior Wall Construction - 5
Drywall/Sheetrock 27.00
Interior Floor Cover - 08
Sheet Vinyl 9.00
Interior Floor Cover - 14
Carpet 0.00
Heating Fuel - 04
Electric 1.00
Heating Type - 10
Heat Pump 4.00
Air Conditioning Type - 03
Central 4.00
Bedrooms/Bathrooms/Half-Bathrooms
2/2/0 8.000
Bedrooms
BAS - 2 FUS - 0 LL - 0 _
Bathrooms
BAS - 2 FUS - 0 LL - 0 _
Half-Bathrooms
BAS - 0 FUS - 0 LL - 0 _
Office
BAS - 0 FUS - 0 LL - 0 0
TOTAL POINT VALUE 101.000
BUILDING ADJUSTMENTS
Quality 5 Average 1.0000
Shape/Design 1 Market Adjustment 1.0000
Size Size Size 1.0500
TOTAL ADJUSTMENT FACTOR 1.050
TOTAL QUALITY INDEX 106
USE MOD Eff. Area QUAL BASE RATE RCN EYB AYB
   Standard  0.08000
CREDENCE TO MARKET
50 01 1,384 106 132.50 184580 2017 2017 % GOOD 92.0
DEPR. BUILDING VALUE - CARD 169,810
TYPE: RURAL SINGLE FAMILY RESIDENTIAL Single Family Residential
STYLE: 1 - 1.0 Story
 

Click on image to enlarge
DEPR. OB/XF VALUE - CARD 15,050
MARKET LAND VALUE - CARD 238,520
TOTAL MARKET VALUE - CARD 423,380
TOTAL APPRAISED VALUE - CARD 423,380
TOTAL APPRAISED VALUE - PARCEL 423,380
TOTAL PRESENT USE VALUE - PARCEL 242,120
TOTAL VALUE DEFERRED - PARCEL 181,260
TOTAL TAXABLE VALUE - PARCEL $ 242,120
PRIOR
BUILDING VALUE 116,190
OBXF VALUE 11,410
LAND VALUE 198,910
PRESENT USE VALUE 47,220
DEFERRED VALUE 151,690
TOTAL VALUE 326,510
PERMIT
CODE DATE NOTE NUMBER AMOUNT
ROUT: WTRSHD:
SALES DATA
OFF. RECORD DATE DEED TYPE Q/U V/I INDICATE SALES PRICE
BOOK PAGE MO YR
00715 0386 1 1901 WD U I 0
0022E 0767 12 2022 WB C I 0
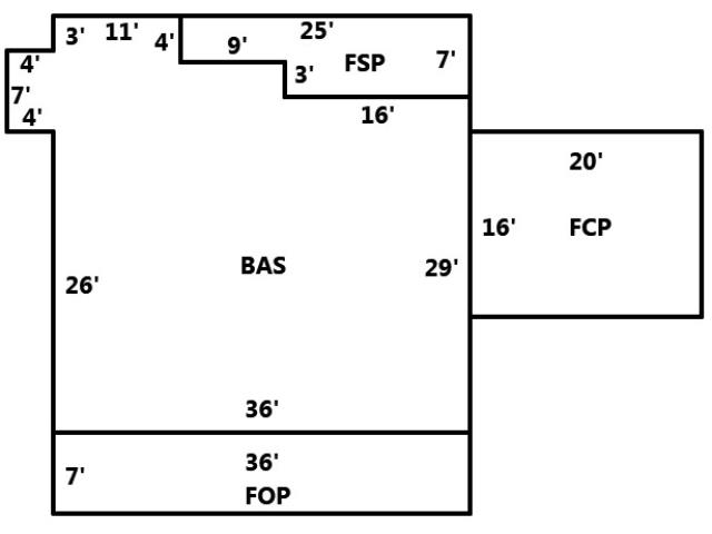
HEATED AREA 1,176
NOTES
P2-17 NH FOR 2018.
SUBAREA
TYPE GS AREA % RPL CS
BAS 1,176 100 155820
FCP 320 025 10600
FOP 252 030 10070
FSP 148 035 6890
FIREPLACE 2 - Pre-Fab 1,200
SUBAREA TOTALS 1,896   184,580
CODE QUALITY DESCRIPTION COUNT LTH WTH UNITS UNIT PRICE ORIG % COND BLDG# AYB EYB ANN DEP RATE OVR % COND OB/XF DEPR. VALUE
23 2 PACK BARN   30 64 1,920 15.00 100 _ 1965 1965 S3   10 2880
29 1 IMPROVSHED   40 305 12,200 6.00 15 _ 1979 1979 S3   20 2196
29 1 IMPROVSHED   40 305 12,200 6.00 15 _ 1979 1979 S3   20 2196
29 1 IMPROVSHED   40 305 12,200 6.00 15 _ 1979 1979 S3   20 2196
01 2 STORAG BLD   30 69 2,070 20.00 100 _ 1967 1967 S3   10 4140
21 2 GRAIN BIN   0 0 3,000 1.20 100 _ 1968 1968 S3   20 720
21 2 GRAIN BIN   0 0 3,000 1.20 100 _ 1968 1968 S3   20 720
TOTAL OB/XF VALUE 15,048
BUILDING DIMENSIONS    
LAND INFORMATION
HIGHEST AND BEST USE USE CODE LOCAL ZONING FRON TAGE DEPTH DEPTH / SIZE LND MOD COND FACT OTHER ADJUSTMENTS AND NOTES
  RF   AC   LC  TO  OT
ROAD
TYPE
LAND UNIT PRICE TOTAL LAND UNITS UNT TYP TOTAL ADJST ADJUSTED UNIT PRICE LAND VALUE OVERRIDE VALUE LAND NOTES
5111 5111   0 0 0.9600 0 1.0000
  
  6,500.00 13.600 AC 0.960 6,240.00 84864 0  
5411 5411   0 0 0.9600 0 1.0000
  
  4,900.00 5.780 AC 0.960 4,704.00 27189 0  
6011 6011   0 0 0.9600 0 1.0000
  
  3,000.00 34.840 AC 0.960 2,880.00 100339 0  
5711 5711   0 0 1.0000 0 1.0000
  
  250.00 4.500 AC 1.000 250.00 1125 0  
5010 5010   0 0 1.0000 0 1.0000
  
  25,000.00 1.000 AC 1.000 25,000.00 25000    
TOTAL MARKET LAND DATA 59.720   238,520  
5110 5110   0 0 1.0000 5 1.0000
  
  1,200.00 13.600 AC 1.000 1,200.00 16320    
5410 5410   0 0 1.0000 5 1.0000
  
  670.00 5.780 AC 1.000 670.00 3873    
6110 6110   0 0 1.0000 5 1.0000
  
  340.00 34.840 AC 1.000 340.00 11846    
6610 6610   0 0 1.0000 5 1.0000
  
  50.00 4.500 AC 1.000 50.00 225    
5010 5010   0 0 1.0000 5 1.0000
  
  25,000.00 1.000 AC 1.000 25,000.00 25000    
TOTAL PRESENT USE DATA 59.720   57,260