WAYNE COUNTY 4/5/2026 12:36:12 PM
PRICE ANDRA STARLING   Return/Appeal Notes:   Parcel: 3547849520
153 BESTON DR PLAT: / UNIQ ID 23776
464490     ID NO: 04B10046001023
COUNTYWIDE ADVALOREM TAX (100), FIRE - MOSELEY HALL (100), SW FFEEFEE (1)        CARD NO. 1 of 1  
Reval Year: 2025 Tax Year: 2026 LT 23 & 24 BEST HGTS 1165-643/SURV 1.0000 LT   SRC=  
Appraised by 60 on 07/28/2010 04046 BEST HEIGHTS TW-04 CI-00 FR-29 EX- AT- LAST ACTION 20250311
CONSTRUCTION DETAIL MARKET VALUE   DEPRECIATION CORRELATION OF VALUE
Foundation - 3
Continuous Footing 5.00
Sub Floor System - 4
PLYWOOD 6.00
Exterior Walls - 10
Aluminum/Vinyl Siding 30.00
Roofing Structure - 03
Gable 4.00
Roofing Cover - 03
Asphalt or Comp Shingle 4.00
Interior Wall Construction - 4
Plywood Panel 22.00
Interior Floor Cover - 08
Sheet Vinyl 9.00
Interior Floor Cover - 14
Carpet 0.00
Heating Fuel - 04
Electric 1.00
Heating Type - 10
Heat Pump 4.00
Air Conditioning Type - 03
Central 4.00
Bedrooms/Bathrooms/Half-Bathrooms
3/2/0 12.000
Bedrooms
BAS - 3 FUS - 0 LL - 0 _
Bathrooms
BAS - 2 FUS - 0 LL - 0 _
Half-Bathrooms
BAS - 0 FUS - 0 LL - 0 _
Office
BAS - 0 FUS - 0 LL - 0 0
TOTAL POINT VALUE 101.000
BUILDING ADJUSTMENTS
Quality 5 Average 1.0000
Shape/Design 1 Market Adjustment 1.0000
Size Size Size 0.9800
TOTAL ADJUSTMENT FACTOR 0.980
TOTAL QUALITY INDEX 99
USE MOD Eff. Area QUAL BASE RATE RCN EYB AYB
   Standard  0.39000
CREDENCE TO MARKET
02 01 1,615 99 84.15 135903 2005 1987 % GOOD 61.0
DEPR. BUILDING VALUE - CARD 82,900
TYPE: MOBILE HOME Single Family Residential
STYLE: 1 - 1.0 Story
 

Click on image to enlarge
DEPR. OB/XF VALUE - CARD 2,400
MARKET LAND VALUE - CARD 39,000
TOTAL MARKET VALUE - CARD 124,300
TOTAL APPRAISED VALUE - CARD 124,300
TOTAL APPRAISED VALUE - PARCEL 124,300
TOTAL PRESENT USE VALUE - PARCEL 0
TOTAL VALUE DEFERRED - PARCEL 0
TOTAL TAXABLE VALUE - PARCEL $ 124,300
PRIOR
BUILDING VALUE 31,720
OBXF VALUE 3,060
LAND VALUE 22,500
PRESENT USE VALUE 0
DEFERRED VALUE 0
TOTAL VALUE 57,280
PERMIT
CODE DATE NOTE NUMBER AMOUNT
ROUT: WTRSHD:
SALES DATA
OFF. RECORD DATE DEED TYPE Q/U V/I INDICATE SALES PRICE
BOOK PAGE MO YR
01165 0894 5 1987 WD U I 4000
HEATED AREA 1,512
NOTES
M/H ACROSS LOTS D/W 100% FOR 1988
SUBAREA
TYPE GS AREA % RPL CS
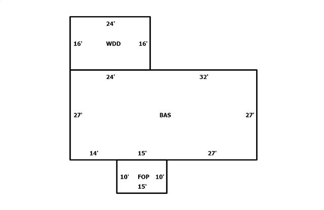
BAS 1,512 100 127235
FOP 150 030 3787
WDD 384 015 4881
FIREPLACE 1 - None 0
SUBAREA TOTALS 2,046   135,903
CODE QUALITY DESCRIPTION COUNT LTH WTH UNITS UNIT PRICE ORIG % COND BLDG# AYB EYB ANN DEP RATE OVR % COND OB/XF DEPR. VALUE
03 1 CARPORT   20 18 360 10.00 100 1 2000 2000 S3   25 900
01 2 STORAG BLD   12 20 240 20.00 100 1 2000 2000 S3   25 1200
39 2 CANOPY   12 8 96 5.00 100 1 2000 2000 S3   25 120
39 1 CANOPY   16 11 176 4.00 100 1 2000 2000 S3   25 176
TOTAL OB/XF VALUE 2,396
BUILDING DIMENSIONS BAS=W32W24S27E14E15E27N27Area:1,512.0;WDD=W24N16E24S16Area:384.0;FOP=E15S10W15N10Area:150.0;TotalArea:2,046.0  
LAND INFORMATION
HIGHEST AND BEST USE USE CODE LOCAL ZONING FRON TAGE DEPTH DEPTH / SIZE LND MOD COND FACT OTHER ADJUSTMENTS AND NOTES
  RF   AC   LC  TO  OT
ROAD
TYPE
LAND UNIT PRICE TOTAL LAND UNITS UNT TYP TOTAL ADJST ADJUSTED UNIT PRICE LAND VALUE OVERRIDE VALUE LAND NOTES
0200 0200   0 0 1.0000 0 1.5000
  SIZE
  26,000.00 1.000 LT 1.500 39,000.00 39000 0  
TOTAL MARKET LAND DATA     39,000  
TOTAL PRESENT USE DATA