WAYNE COUNTY 4/4/2026 8:19:45 PM
BEST JIMMIE E        BEST BARBARA A WIFE Return/Appeal Notes:   Parcel: 3503765178
132 BRIARBED LN PLAT: / UNIQ ID 14946
726260     ID NO: 03E13000001013B
COUNTYWIDE ADVALOREM TAX (100), FIRE - INDIAN SPRINGS (100), SW FFEEFEE (2)        CARD NO. 1 of 1  
Reval Year: 2025 Tax Year: 2026 132 BRIARBED LN 1.0000 LT   SRC=  
Appraised by 11 on 07/07/2010 03909 INDIAN SPRINGS TOWNSHIP TW-03 CI-00 FR-24 EX- AT- LAST ACTION 20230721
CONSTRUCTION DETAIL MARKET VALUE   DEPRECIATION CORRELATION OF VALUE
Foundation - 3
Continuous Footing 5.00
Sub Floor System - 4
PLYWOOD 6.00
Exterior Walls - 10
Aluminum/Vinyl Siding 30.00
Roofing Structure - 03
Gable 4.00
Roofing Cover - 03
Asphalt or Comp Shingle 4.00
Interior Wall Construction - 4
Plywood Panel 22.00
Interior Floor Cover - 08
Sheet Vinyl 9.00
Interior Floor Cover - 14
Carpet 0.00
Heating Fuel - 03
Gas 1.00
Heating Type - 10
Heat Pump 4.00
Air Conditioning Type - 03
Central 4.00
Bedrooms/Bathrooms/Half-Bathrooms
3/2/0 12.000
Bedrooms
BAS - 3 FUS - 0 LL - 0 _
Bathrooms
BAS - 2 FUS - 0 LL - 0 _
Half-Bathrooms
BAS - 0 FUS - 0 LL - 0 _
Office
BAS - 0 FUS - 0 LL - 0 0
TOTAL POINT VALUE 101.000
BUILDING ADJUSTMENTS
Quality 6 Average + 1.1000
Shape/Design 1 Market Adjustment 1.0000
Size Size Size 0.9800
TOTAL ADJUSTMENT FACTOR 1.080
TOTAL QUALITY INDEX 109
USE MOD Eff. Area QUAL BASE RATE RCN EYB AYB
   Standard  0.61000
CREDENCE TO MARKET
02 01 1,546 109 92.65 143237 1998 1998 % GOOD 39.0
DEPR. BUILDING VALUE - CARD 55,860
TYPE: MOBILE HOME Single Family Residential
STYLE: 1 - 1.0 Story
 

Click on image to enlarge
DEPR. OB/XF VALUE - CARD 5,980
MARKET LAND VALUE - CARD 18,400
TOTAL MARKET VALUE - CARD 80,240
TOTAL APPRAISED VALUE - CARD 80,240
TOTAL APPRAISED VALUE - PARCEL 80,240
TOTAL PRESENT USE VALUE - PARCEL 0
TOTAL VALUE DEFERRED - PARCEL 0
TOTAL TAXABLE VALUE - PARCEL $ 80,240
PRIOR
BUILDING VALUE 42,870
OBXF VALUE 5,310
LAND VALUE 11,960
PRESENT USE VALUE 0
DEFERRED VALUE 0
TOTAL VALUE 60,140
PERMIT
CODE DATE NOTE NUMBER AMOUNT
ROUT: WTRSHD:
SALES DATA
OFF. RECORD DATE DEED TYPE Q/U V/I INDICATE SALES PRICE
BOOK PAGE MO YR
02907 0530 2 2012 WD A I 76000
01074 0887 1 1984   U V 3000
HEATED AREA 1,512
NOTES
1 DW
SW ONLOT
DW FOR 99 REPLACES OLD DW
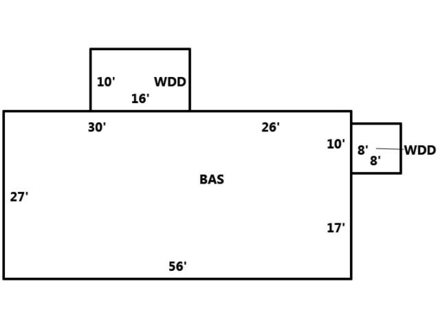
SUBAREA
TYPE GS AREA % RPL CS
BAS 1,512 100 140087
WDD 224 015 3150
FIREPLACE 1 - None 0
SUBAREA TOTALS 1,736   143,237
CODE QUALITY DESCRIPTION COUNT LTH WTH UNITS UNIT PRICE ORIG % COND BLDG# AYB EYB ANN DEP RATE OVR % COND OB/XF DEPR. VALUE
    SHED   16 20 1 500.00 100 1 1900 1900 0   100 500
29 2 IMPROVSHED   20 26 520 10.00 100 1 1965 1965 S3   20 1040
01 2 STORAG BLD   22 42 924 20.00 100 1 1965 1965 S3   10 1848
24 2 SHED (OPEN ENDED)   12 6 72 15.00 100 1 1965 1965 S3   10 108
15 1 MOBILEHOME   0 0 1 2,000.00 100 1 1900 1900 0   100 2000
11 1 DECK/STOOP   8 16 128 15.00 100 1 2000 2000 S3   25 480
TOTAL OB/XF VALUE 5,976
BUILDING DIMENSIONS BAS=W26W30S27E56N17N10Area:1512;WDD=N10W16S10E16Area:160;WDD=E8N8W8S8Area:64;TotalArea:1736  
LAND INFORMATION
HIGHEST AND BEST USE USE CODE LOCAL ZONING FRON TAGE DEPTH DEPTH / SIZE LND MOD COND FACT OTHER ADJUSTMENTS AND NOTES
  RF   AC   LC  TO  OT
ROAD
TYPE
LAND UNIT PRICE TOTAL LAND UNITS UNT TYP TOTAL ADJST ADJUSTED UNIT PRICE LAND VALUE OVERRIDE VALUE LAND NOTES
5020 5020   0 0 1.0000 0 1.0000
  60 FT R/W
  20,000.00 0.920 AC 1.000 20,000.00 18400 0  
TOTAL MARKET LAND DATA 0.920   18,400  
TOTAL PRESENT USE DATA